Murta Immobilier Agence
Télécharger la fiche
Exclusivité

Terrain à batir 1714 m²

Drap (06340)
215 000 € Référence MVTE10000459

A propos de ce bien

Situé à DRAP 06340, à 15 min de Nice 06 et 35 min de Monaco.

 

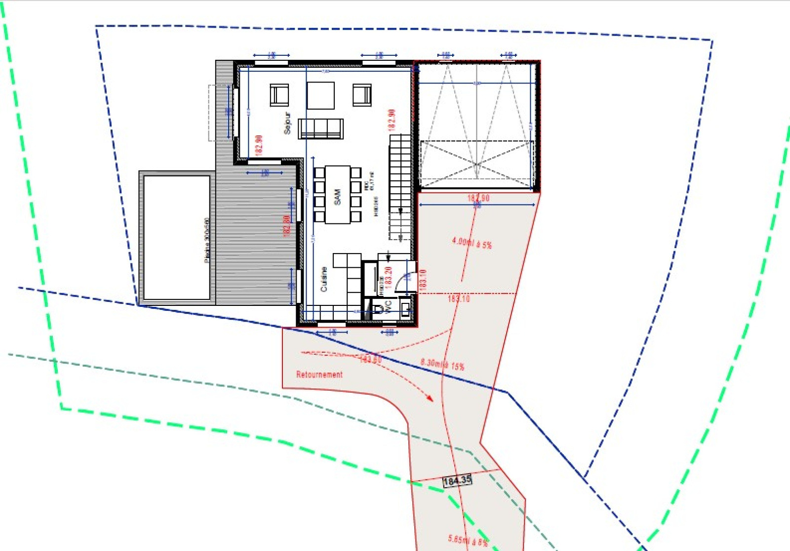
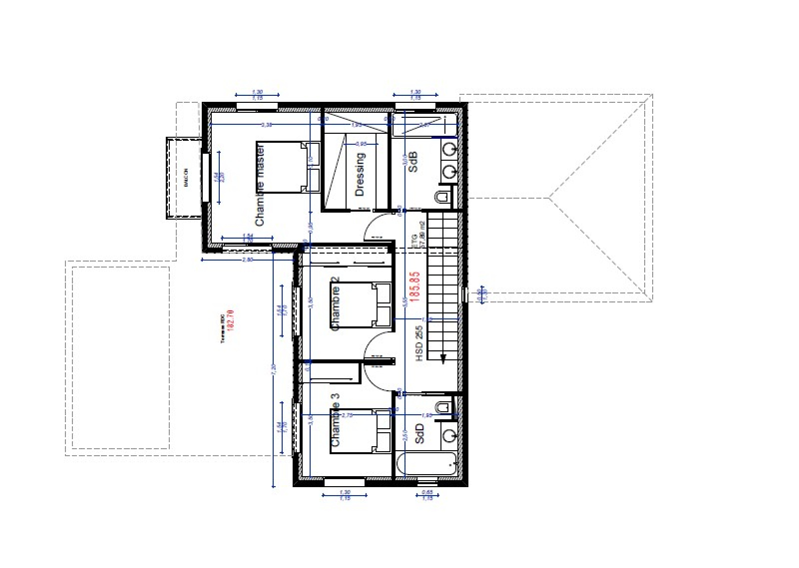
Terrain de 1714 m² relativement plat Terrain constructible plat avec permis accepté et purgé pour une maison individuelle type 4 pièces de 123m² de surface de plancher en R+1 avec garage double et piscine et jardin tout autour plat. 

Maison tournée vers une belle vue dégagée sur les collines. 

 

Viabilité : eau potable en bordure, assainissement collectif à proximité, EDF à proximité.

Caractéristiques de ce bien

  • terrain 1 714 m²
  • vue Dégagée

Diagnostics énergétiques

DPE
GES
DPE ANCIENNE VERSION

Informations financières

Prix de vente honoraires TTC inclus 215 000 €
Prix de vente honoraires TTC exclus 202 000 €
Honoraires TTC à la charge acquéreur 6,44 %

Calcul des mensualités

* Champs obligatoires